Facilities
- Built for 525 students (Stage 1)
- Open to Prep - Year 6 students
Features:
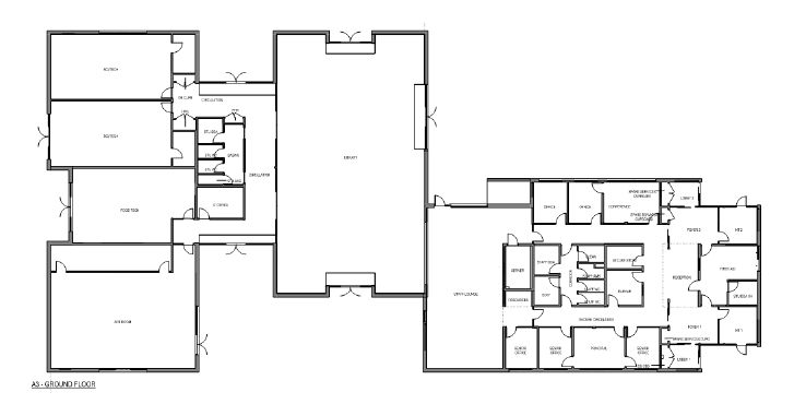
- an administration building with a library, staff offices and amenities
- two learning neighbourhood buildings with general purpose classrooms, and flexible and collaborative teaching spaces
- a specialist learning neighbourhood building linked to the admin building for subjects such as art, food technology and science
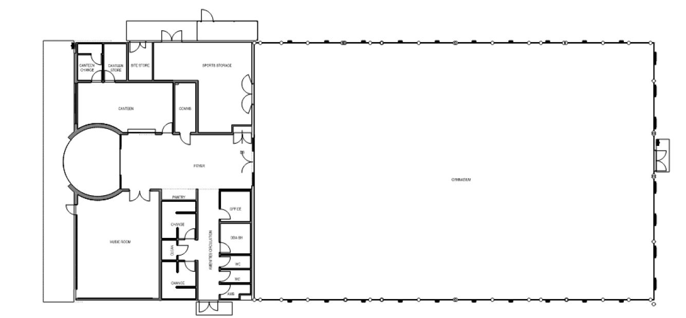
- a community hub with a competition-grade gymnasium, canteen, music and drama space
- two outdoor hardcourts
- a soccer field
- bike storage